鹿児島市の賃貸仲介・不動産管理|有限会社南宝社 > (賃貸)地域から探す > 鹿児島市 > レオパレス紫原
レオパレス紫原
【アパート】 物件番号:91886116 情報更新日:2026年04月18日 次回更新予定日:2026年05月02日
| 所在地 | 鹿児島県鹿児島市紫原4丁目19-4 | ||
|---|---|---|---|
| 交通 |
|
||
| 間取り/詳細 | 1K | ||
| 賃料 | 2.8万円 | 管理費+共益費 | 5,500円 |
| 敷金/保証金/礼金 | 0ヶ月/ -/ 0ヶ月 | 償却/敷引 | -/ - |
| 敷金積み増し | - | 面積 | 19.87㎡ |
| 築年月(築年数)/方位 | 2007年 2月(築19年)/- | 契約期間 | - |
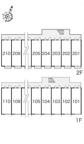
| 種別/構造 | アパート/軽量鉄骨 | 部屋/所在階/階建 | 101/ 1階/ 2階建 |
| 総戸数 | 20戸 | 現状/入居可能日 | 空家/即時 |
| 駐車場/料金 | -/- | 保険加入/料金 | 有/26,680円 |
| 保険名/保険期間 | -/2年 | 特優賃 | - |
| 権利金/雑費 | -/- | 取引形態/賃貸区分 | 仲介/一般 |
| 保証人代行義務 | 必加入 | 保証会社 | その他 |
| 保証会社詳細 | 保証会社の利用 利用料の100%~120% | ||
| 設備条件 |
|
||
| 条件(その他) | 鍵交換代:1万6,500円 室内清掃費用:4万1,800円 | ||
| QRコード |
このQRコードを読み取ることで、ケータイでも物件情報を確認できます。 |
||


※1. 仲介手数料は税込み価格です。また、仮の価格となりますので、実際の仲介手数料に関してはお気軽にお問い合わせ下さい。
※2. 1か月を30日として計算しています。
※3. その他費用は鍵交換代や保証料等の合計金額を表示させています。
※地図上の物件位置は近隣に物件が所在することを表すものであり、実際の物件所在地とは異なる場合がございます。