鹿児島市の賃貸仲介・不動産管理|有限会社南宝社 > (賃貸)地域から探す > 鹿児島市 > レオパレス紫原
レオパレス紫原
共用部には宅配ボックスが備え付けられているため、好きなタイミングで荷物を受け取ることができます。来客時にはTVインターホンで訪問者の顔を確認することができるので防犯対策につながります。お部屋とキッチンに仕切りがある、1Kの物件です。指宿枕崎線南鹿児島近辺で快適で心安らぐ新生活をスタート。099-265-5000またはnanpo@nanpo.comから南宝社までご連絡ください。
洗濯物の外干しで花粉が付くのが心配なときでも、この物件には浴室乾燥機があるので室内でカラッと乾かせて安心です。共用部には宅配ボックスが備え付けられているため、外出が多い方でも荷物を受け取ることができます。玄関先まで覗き穴を覗きに行かなくてもインターホン越しに誰が来たのかを確認できます。暑い日でも寒い日でも、エアコンのあるアパートなら安心です。今引っ越しをお考えの方におすすめなのが、こちらのアパートです。電気コンロが付いた物件です。便利な暮らしをご希望で指宿枕崎線南鹿児島周辺のお部屋をお求めの方は099-265-5000もしくは、nanpo@nanpo.comへお問い合わせ下さい。
【アパート】 物件番号:89491777 情報更新日:2026年02月02日 次回更新予定日:2026年02月16日
| 所在地 | 鹿児島県鹿児島市紫原4丁目19-4 | ||
|---|---|---|---|
| 交通 |
|
||
| 間取り/詳細 | 1K | ||
| 賃料 | 3.3万円 | 管理費+共益費 | 5,500円 |
| 敷金/保証金/礼金 | 0ヶ月/ -/ 0ヶ月 | 償却/敷引 | -/ - |
| 敷金積み増し | - | 面積 | 19.87㎡ |
| 築年月(築年数)/方位 | 2007年 2月(築19年)/- | 契約期間 | - |
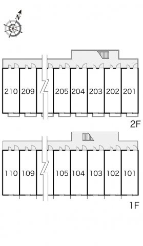
| 種別/構造 | アパート/軽量鉄骨 | 部屋/所在階/階建 | 207/ 2階/ 2階建 |
| 総戸数 | 20戸 | 現状/入居可能日 | 空家/即時 |
| 駐車場/料金 | -/- | 保険加入/料金 | 有/26,680円 |
| 保険名/保険期間 | -/2年 | 特優賃 | - |
| 権利金/雑費 | -/- | 取引形態/賃貸区分 | 仲介/一般 |
| 保証人代行義務 | 必加入 | 保証会社 | その他 |
| 保証会社詳細 | 保証会社の利用 利用料の100%~120% | ||
| 設備条件 |
|
||
| 条件(その他) | 鍵交換代:1万6,500円 室内清掃費用:4万1,800円 | ||
| QRコード |
このQRコードを読み取ることで、ケータイでも物件情報を確認できます。 |
||


※1. 仲介手数料は税込み価格です。また、仮の価格となりますので、実際の仲介手数料に関してはお気軽にお問い合わせ下さい。
※2. 1か月を30日として計算しています。
※3. その他費用は鍵交換代や保証料等の合計金額を表示させています。
※地図上の物件位置は近隣に物件が所在することを表すものであり、実際の物件所在地とは異なる場合がございます。