鹿児島市の賃貸仲介・不動産管理|有限会社南宝社 > (戸建(売買))地域から探す > 鹿児島市 > 坂之上5丁目(建物:92.67坪・土地:244.79坪) 中古住宅
坂之上5丁目(建物:92.67坪・土地:244.79坪) 中古住宅
◎広々6LDK
◎全居室エアコン
◎ワイドバルコニー
◎ウッドデッキ
◎縁側
◎庭
◎車庫
◎閑静な住宅街
◎ドラッグイレブン 坂之上店まで徒歩8分
◎JR坂之上駅まで徒歩11分
【中古一戸建】 物件番号:92228216 情報更新日:2026年03月06日 次回更新予定日:2026年03月20日
| 物件名 | 坂之上5丁目(建物:92.67坪・土地:244.79坪) 中古住宅 | ||
|---|---|---|---|
| 所在地 | 鹿児島県鹿児島市坂之上5丁目 | ||
| 交通 |
|
||
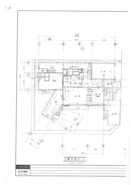
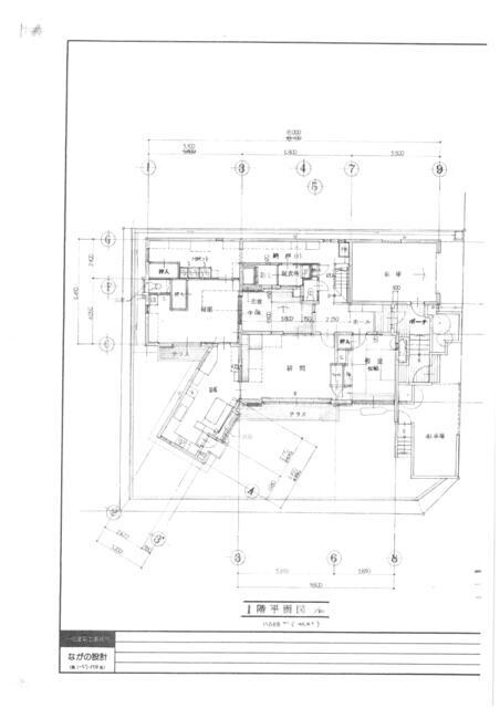
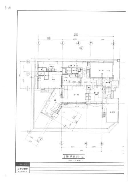
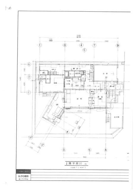
| 間取り/詳細 |
6LDK 和室 10.0帖/洋室 10.0帖/洋室 6.0帖/洋室 5.0帖/洋室 5.0帖/洋室 5.0帖/LDK 20.3帖 |
||
| 接道状況 | -(西 私道 4.0m 間口 10.0m) | ||
| 価格 | 4,200万円 | 主要採光面 | - |
| 建物面積/坪数 | 306.37㎡/ 92.67坪 | 土地面積/坪数 | 809.24㎡/ 244.79坪 |
| 種別/構造 | 中古一戸建/木造 | 築年月(築年数) | 2002年 3月(築24年) |
| 階建 | 2階建 | 地目 | 宅地 |
| 駐車場/料金 | -/- | 地勢 | 高台 |
| 私道面積 | 349.42㎡ | セットバック | - |
| 都市計画 | 市街化区域 | 用途地域 | - |
| 建ぺい率/容積率 | 50%/80% | 土地権利 | 所有権 |
| 総区画数 | - | 借地料/借地期間 | -/- |
| 現況 | 居住中 | その他の法令上の制限 | 宅地造成及び特定盛土等規制法/急傾斜地崩壊危険区域/建築基準法第22条指定地域 |
| 取引態様/引渡時期 | 仲介/相談 | 建築確認番号 | 第H13鹿児島市01353号 |
| 設備条件 |
|
||
| 備考 | 建築確認完了検査済証 新築時・増改築時の設計図書 | ||
| 条件(その他) | 庭木の剪定年:20万円 | ||
| QRコード |
このQRコードを読み取ることで、ケータイでも物件情報を確認できます。 |
||










(※元利均等方式 金利5.00%まで ※返済年数5~50年まで入力できます)
(※ボーナスは年2回で計算しています。1000万円まで入力できます)
※地図上の物件位置は近隣に物件が所在することを表すものであり、実際の物件所在地とは異なる場合がございます。